top of page
description
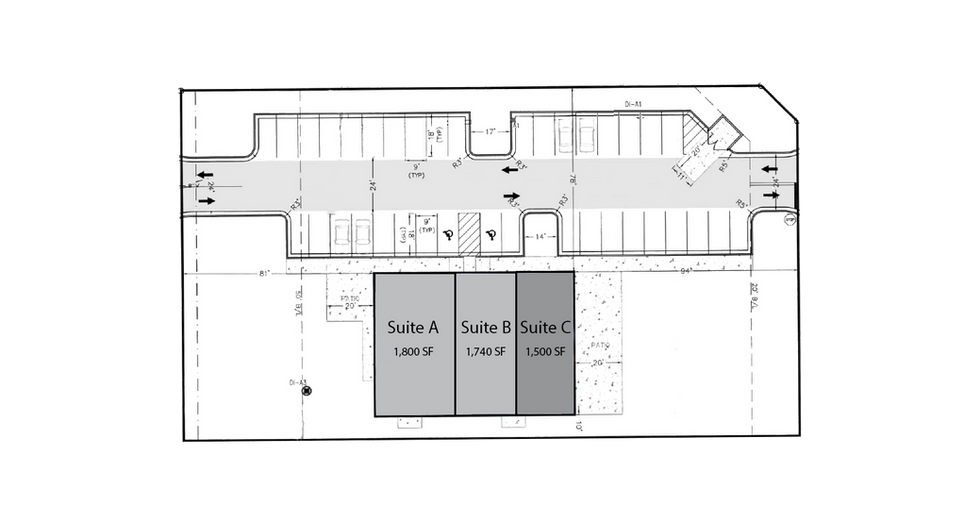
A new ± 5,000 SF retail strip center is under development in Locust Grove. This Walmart shadow center has cross access to Walmart from Market Place Boulevard. Positioned for high visibility and traffic, the project will feature multiple tenant spaces ideal for restaurant or
specialty use. Pre-leasing is now underway.
• Up to 1,740 SF available for lease
• Cross access to Walmart, having ~2.2 MM annual visitors
• New local retailers include Dutch Bros., Dent First Dental, and Gabino's Mexican Grill
• Strategically positioned near I-75 and Tanger Outlets
• Patio available for endcap space
• Brand new Dutch Bro's open at Bill Gardner
location
595 Market Place Boulevard, Locust Grove, GA, USA
bottom of page



